Materiaali: KUUSI | Paino: 1200kg | Halkaisija: 240cm | Henkilömäärä: 8 |
Tynnyrisauna Terassilla 240X400 ovaali Kuusi
6200
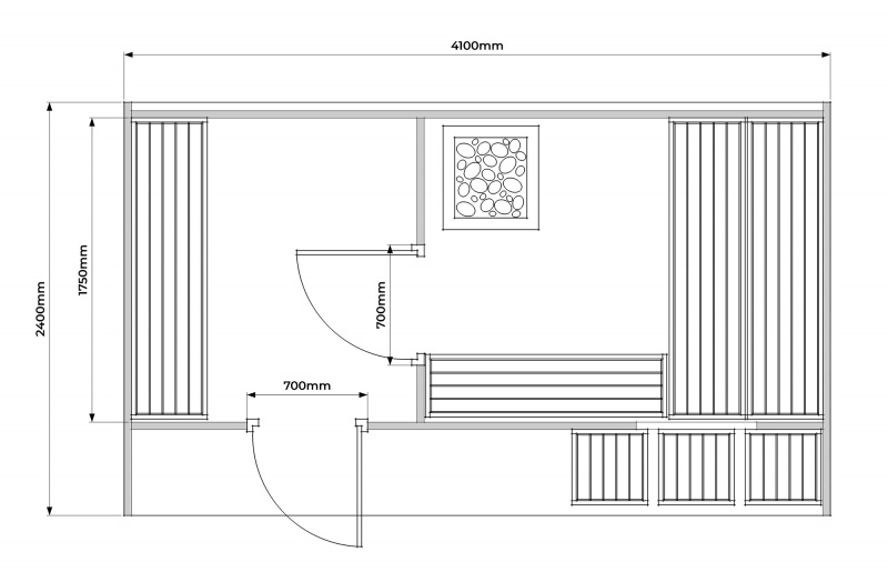
Tuotteen ominaisuudet:
- ulkomitat: 240 cm × 400 cm
- sisätilan korkeus: 210 cm
- etuseinässä pyöreä ikkuna
- lukittava ulko-ovi lasilla
- löylyhuoneen ovi lasia
- materiaalina kuusi, paksuus 42 mm
- lattiaritilät
- kaksiportaiset L-muotoiset lauteet ,puhkuoneessa penkki
- sauna on sisältä päin käsittelemättä ulkopuoli käsitelty haluamallasi sävyllä värikartasta
- lasiluukkuinen kiuvas harvia+kiuvaskivet
- kiukaan suojat
- savupiippu ruostumatonta terästä, asennettava itse (katossa läpivienti piippua varten)
- ilmanvaihtoventtiilit
- vesikatteena palahuopa musta
- kolme ruostumattomasta teräksestä valmistettua vannetta
- vedenlämmitin rst
Sauna kannattaa asentaa sepelipohjalle ja laittaa tukijalkojen alle pihalaatat (6 kpl)
SAUNA TOIMITETAAN TÄYSIN KOOTTUNA.
SAUNA SAATAVANA MYÖS ILMAN TERASSIA HINTA SAMA KUIN TERASSILLA
SAMA SAUNA LÄMPÖKÄSITELTYKUUSI 7050€
LISÄVARUSTEET:
- sähkökiuas
- Saunan sisäkäsittely+lauteet ja pukuhuoneen penki käsittely laudesuojalla 250€
